- Woonoppervlakte
- Circa 107 m²
- Perceeloppervlakte
- Circa 169 m²
- Bouwjaar
- Gebouwd in 1970
- Aantal kamers
- 6 kamers (4 slaapkamers)
De woning heeft kunststof kozijnen met draai- kiepramen en isolatieglas in zowel de voor- als achtergevel. De strakke en modern vormgegeven keuken met inbouwapparatuur is nauwelijks gebruikt en ook de badkamer met inloopdouche en hangend tweede toilet is nog als nieuw.
Wat direct opvalt is dat de woning lekker licht is; dat komt door de grote raampartijen. Onderscheidend is ook dat de woning aan een autoluw hofje ligt waar precies voor de deur parkeergelegenheid en een groenstrook ligt. De wijk is ruim opgezet met louter laagbouw in een combinatie van diverse type woningen.
Met het energielabel C liggen nog kansen voor verdere verduurzaming. Een labelsprong is zo gemaakt door toepassing extra isolatie of het plaatsen van enkele panelen.
Molenhoek beschikt over een goed uitgerust winkelcentrum en een treinstation op loopafstand. Diverse sportfaciliteiten, verenigingen, een basis- én middelbare school; het is er allemaal. Natuur te over: uitgestrekte bossen en de bijzondere combinatie van een heuvel- en rivierlandschap. De Mookerheide, Heumense Schans en watersportgebied Mookerplas bieden alle denkbare recreatie en ontspanning. De aansluiting op het landelijk wegennet (A73) is op circa 2 km afstand.
Indeling:
Begane grond: entree; hal met meterkast, trapkast en toilet met fonteintje.
De doorzon woonkamer is lekker breed en heel erg licht. Het is mogelijk de muur tussen de woonkamer en keuken door te breken, met de keukenopstelling is daar al rekening mee gehouden.
De dichte keuken is ruim en biedt naast de keukenopstelling met ingebouwde inductie kookplaat, afzuigkap, combioven, koelkast, vriezer én vaatwasser, ruimte voor een eettafel. De keuken beschikt over een eigen warmwater voorziening via close-in boiler.
Eerste verdieping: overloop; vier slaapkamers en een badkamer. Van de vier slaapkamers zijn de twee grootste kamers voorzien van inbouwkasten. Die aan de voorzijde meet 11 m² en de slaapkamer aan de achterzijde meet zelfs 14 m². Slaapkamer 3 aan de achterzijde is 10 m² en de kamer aan de voorzijde van 6 m² biedt de mogelijkheid om een vaste trap naar de zolderetage te laten vertrekken.
De badkamer is licht betegeld, beschikt over een inloopdouche, wastafel en tweede toilet.
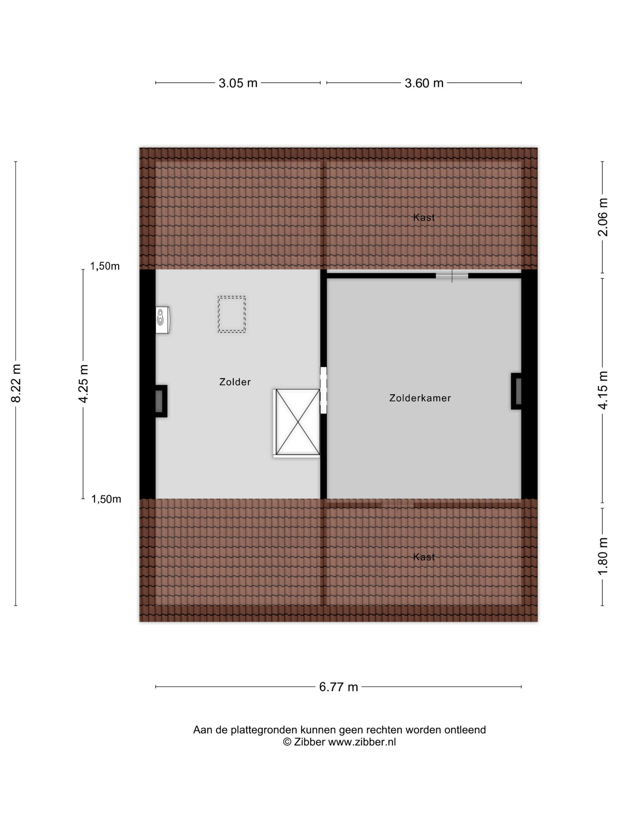
Tweede verdieping: ruime voorzolder met opstelling cv-ketel en dakraam; doorgang naar zolderkamer. Deze fantastische ruimte biedt zoveel extra mogelijkheden; een vijfde slaapkamer, mogelijkheid voor dakkapel(len), werk-/hobbyruimte maar sowieso veel bergruimte.
Bijzonderheden:
- Centrale verwarming via Intergas combiketel en separate keukenboiler.
- De woning is volgens het energielabel voorzien van enige dakisolatie en verdere na- ïsolatie is nog mogelijk.
- Allemaal kunststof kozijnen met isolatieglas.
- Energielabel C met diverse eenvoudige mogelijkheden tot verbetering.
- Moderne en luxe keuken in matgrijze uitvoering.
- Fijne badkamer met inloopdouche voorzien van thermostaatkraan en regendouche.
- Ruime en lichte woning.
- Molenhoek is een dorp met diverse openbare- en winkelvoorzieningen.
- Treinstation en uitgestrekte bossen letterlijk om de hoek.
- Via Heumensoord in 25 fietsminuten op Radboud ziekenhuis/universiteit.
- Nabij oprit A73.
Ruime tussenwoning met voor- en achtertuin, berging en achterom aan autoluw hofje
Overdracht
- Vraagprijs
- € 425.000 k.k.
- Status
- Verkocht
- Aanvaarding
- In overleg
Bouw
- Object type
- Eengezinswoning, tussenwoning
- Soort bouw
- Bestaande bouw
- Bouwjaar
- 1970
- Soort dak
- Zadeldak bedekt met pannen
Oppervlakte en inhoud
- Woonoppervlakte
- 107 m²
- Perceeloppervlakte
- 169 m²
- Inhoud
- 479 m³
- Overige inpandige ruimte
- 29 m²
- Externe bergruimte
- 10 m²
Indeling
- Aantal kamers
- 6 kamers (4 slaapkamers)
- Aantal badkamers
- 1 badkamer
- Badkamervoorzieningen
- Toilet, wastafel, inloopdouche
- Aantal woonlagen
- 3 woonlagen
- Voorzieningen
- Tv-kabel
Energie
- Energielabel
- C
- Energielabel registratie
- 17-12-2025
- Isolatie
- Dakisolatie, hr glas
- Verwarming
- Cv-ketel
- Warm water
- Cv-ketel, elektrische boiler eigendom
- Cv ketel
- Intergas hr combiketel gas gestookt (eigendom)
Buitenruimte
- Ligging
- Aan rustige weg, in woonwijk
- Tuin
- Achtertuin, voortuin
- Afmetingen achtertuin
- 70 m² (10 meter diep en 7 meter breed)
- ligging tuin
- Gelegen op het noordoosten en bereikbaar via achterom
Bergruimte
- Schuur / berging
- Vrijstaand steen
- Voorzieningen
- Voorzien van elektra
Garage
- Soort garage
- Geen garage
Parkeergelegenheid
- Soort parkeergelegenheid
- Openbaar parkeren
Indicatie hypotheeklasten
Eigen inleg:
Spaargeld / overwaarde
Rente:
Laagste 10-jaars rente
Laagste 10-jaars rente
2,78% - Centraal Beheer Groen... - NHG
3,04% - Centraal Beheer Groen... - 80%
Laagste 20-jaars rente
3,29% - Centraal Beheer Groen... - NHG
3,52% - Centraal Beheer Groen... - 80%
Laagste 30-jaars rente
3,41% - Centraal Beheer Groen... - NHG
3,7% - Argenta Groen Hypotheek... - 80%
Hypotheek:
Bruto maandlasten: € 0 p/m
Netto maandlasten: € 0 p/m
Hoe berekenen we dit?
Het rentepercentage is gebaseerd op de laagste 10 jaars vaste rente voor één hypotheekdeel. De vermelde rente (3.04% zonder NHG) is gecontroleerd op 23-03-2026. Deze berekening is gebaseerd op een annuïteitenhypotheek die volledig wordt afgelost, waarbij de maandlasten gedurende de gehele looptijd gelijk blijven. De werkelijke rente en netto maandlasten kunnen variëren, afhankelijk van uw persoonlijke situatie en de hypotheekverstrekker. Raadpleeg een financieel adviseur voor een nauwkeurige berekening en advies. Aan deze berekening kunnen geen rechten worden ontleend; het dient enkel als indicatie.
Documentatie
Kadastrale kaart
Leefomgeving
Plattegronden PDF
Brochure
BAG uittreksel
WOZ waarderapport
Bezoek onze website
Inloggen move.nl
Bezichtiging
Bod uitbrengen
Waardebepaling
Zoekopdracht
Alles downloaden
Zonnegrenzen bekijken
Op de kaart
Inwoners in Molenhoek
Cijfers voor postcodegebied 6584
- Totaal aantal inwoners
- 3690 inwoners
- Mannen
- 49%
- Vrouwen
- 51%
Inwoners in Molenhoek
Cijfers voor postcodegebied 6584
- tot 15 jaar
- 14%
- 15 tot 25 jaar
- 12%
- 25 tot 35 jaar
- 16%
- 45 tot 65 jaar
- 32%
- 65 en ouder
- 25%
Huishoudens in Molenhoek
Cijfers voor postcodegebied 6584
- Eenpersoons zonder kinderen
- 28%
- Meerpersoons zonder kinderen
- 36%
- Huishoudens zonder kinderen
- 64%
Huishoudens in Molenhoek
Cijfers voor postcodegebied 6584
- Huishoudens met één kind
- 6%
- Huishoudens met meerdere kinderen
- 30%
- Huishoudens met kinderen
- 36%
Woningen in Molenhoek
Cijfers voor postcodegebied 6584
- Woningen voor 1945
- 3%
- Woningen tussen 1945 en 1965
- 7%
- Woningen tussen 1965 en 1975
- 25%
- Woningen tussen 1975 en 1985
- 23%
- Woningen tussen 1985 en 1995
- 24%
Woningen in Molenhoek
Cijfers voor postcodegebied 6584
- Woningen tussen 1995 en 2005
- 8%
- Woningen tussen 2005 en 2015
- 7%
- Woningen na 2015
- 3%
- Huurwoningen
- 20%
- Koopwoningen
- 80%
Overige in Molenhoek
Cijfers voor postcodegebied 6584
- Gemiddelde WOZ waarde
- € 305.000,-
- Personen onder de 65 met uitkering
- 5%
Overige in Molenhoek
Cijfers voor postcodegebied 6584
- Adressen per km²
- 562
- Stedelijkheid (schaal 1 op 5)
- 40%
Indien u vragen heeft of u wilt een bezichtiging inplannen, dan kunt u gebruik maken van het formulier hiernaast. Er zal daarna op korte termijn contact met u worden opgenomen.
St. Annastraat 18
6524 GC, Nijmegen
024 360 7055 nijmegen@driessenmakelaardij.nl www.driessenmakelaardij.nlContact opnemen
Al 40 jaar uw huismakelaar
Ondernemende makelaar met ambitie
U wilt een huis kopen, verkopen of laten taxeren. Het liefst schakelt u een betrouwbare makelaar in bij u in de buurt. Maar hoe vindt u precies de makelaar die het best bij u past? Het aanbod is al zo groot.
Driessen Makelaardij maakt uw keuze een stuk gemakkelijker. Hoe? Allereerst zijn we al veertig jaar een begrip in de regio. Met een kantoor in Wijchen en in Nijmegen kennen wij de lokale huizenmarkt op ons duimpje. En niet onbelangrijk: de huizenmarkt kent ons. ‘Want vaak is de eerste stap van een woningzoeker de stap naar ons kantoor.’ Hierdoor weten wij vraag en aanbod snel bij elkaar te brengen en perfect in te spelen op de wensen van klanten en potentiële klanten. Bovendien zijn we aangesloten bij de NVM, de grootste brancheorganisatie in de makelaardij. Onze mensen zijn dus uitstekend in staat het hele aan- en verkooptraject van begin tot eind professioneel te begeleiden.
Uw ambitie is onze ambitie. Dat wil zeggen: u verwacht van ons dat we tot het uiterste gaan u die kwaliteit te bieden waarom we al zo lang bekend staan. Daar mag u ons aan houden!
Nieuwste reviews
-
Horstacker 2309
Mario is zeer deskundig. Heeft goed geadviseerd. De bezichtigingen heel goed gepland. Ik ben door het kantoor goed op de hoogte gehouden.Mij...
-
Sperwerstraat 89
Zeer vriendelijke en behulpzame makelaar, telefonisch contact zeer goed en vriendelijken zeker aan te bevelen
-
Pater Leijdekkersstraat 4
Prima, zorgeloos, neemt veel gedoe uit handen, laagdrempelig, direct, helder en goed communicerend, adviserend en afspraak=afspraak. "Kon er...